清芷园屋顶花园
设计师: 于洋
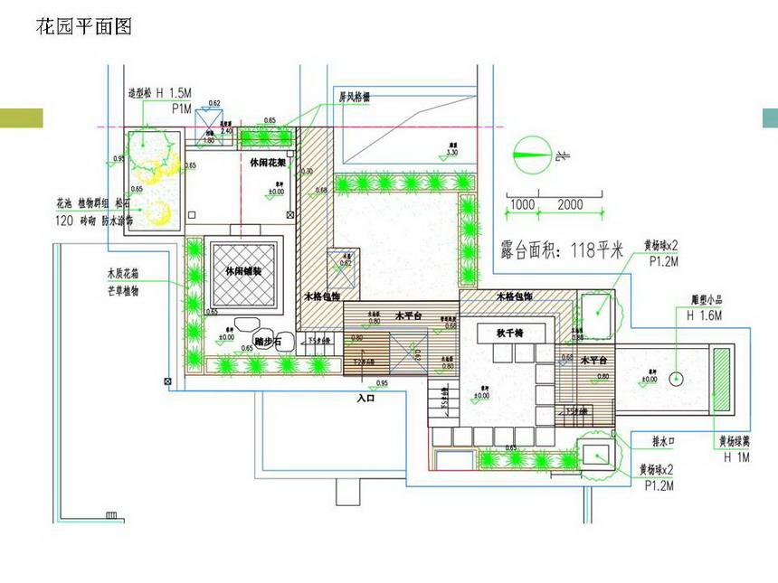
项目名称:清芷园屋顶花园
设计风格: 现代
项目地点: 北京
庭院面积: 118平米
设计时间: 2016年10月
完成时间: 2016年11月
客户评语:0
热门关键词:庭院景观设计,企业景观,庭院绿化设计,别墅花园设计 网站地图:( XML / HTML) 技术支持:信联
热门关键词: 庭院景观设计,企业景观,庭院绿化设计,别墅花园设计
版权所有:北京心尚园林工程设计有限公司 备案号: 京ICP备2021018239号-1
技术支持:信联