领秀新硅谷B区别墅花园

       本案是领秀新硅谷别墅的庭院花园,项目位于北京市海淀区,采用新中式景观设计手法,传统的影壁墙形式以现在形式演绎,将现代元素与传统元素融合在一起,以现在人的审美需求打造传统意味的景观。合理的空间布局,蜿蜒的小路,点睛景观小品,简洁又不乏层次的植物造景,每一处都细致到位。

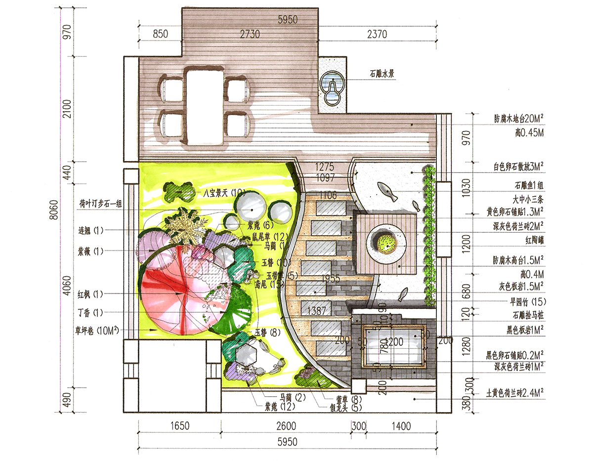
领秀B彩平.jpg

 

领秀B区手绘稿.jpg

 

 

绿化.jpg

 

 

影壁02.jpg

 

2012-11-29 12.48.08.jpg

  

11.jpg

影壁01.jpg

未标题-1.jpg

未标题-1.jpg

设计师:于诗杨

项目名称:领秀新硅谷B区别墅花园

设计风格:新中式

项目地点:北京

庭院面积:60平米

设计时间:2012年1月

完成时间: 2012年5月

客户评语: